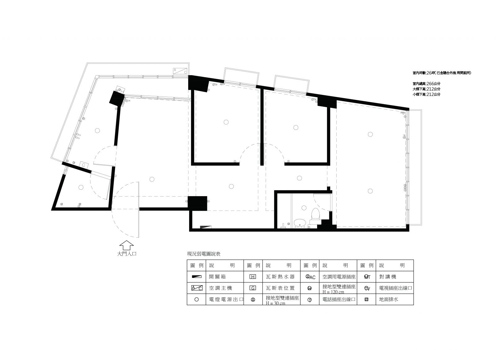
現況平面圖:

 

 

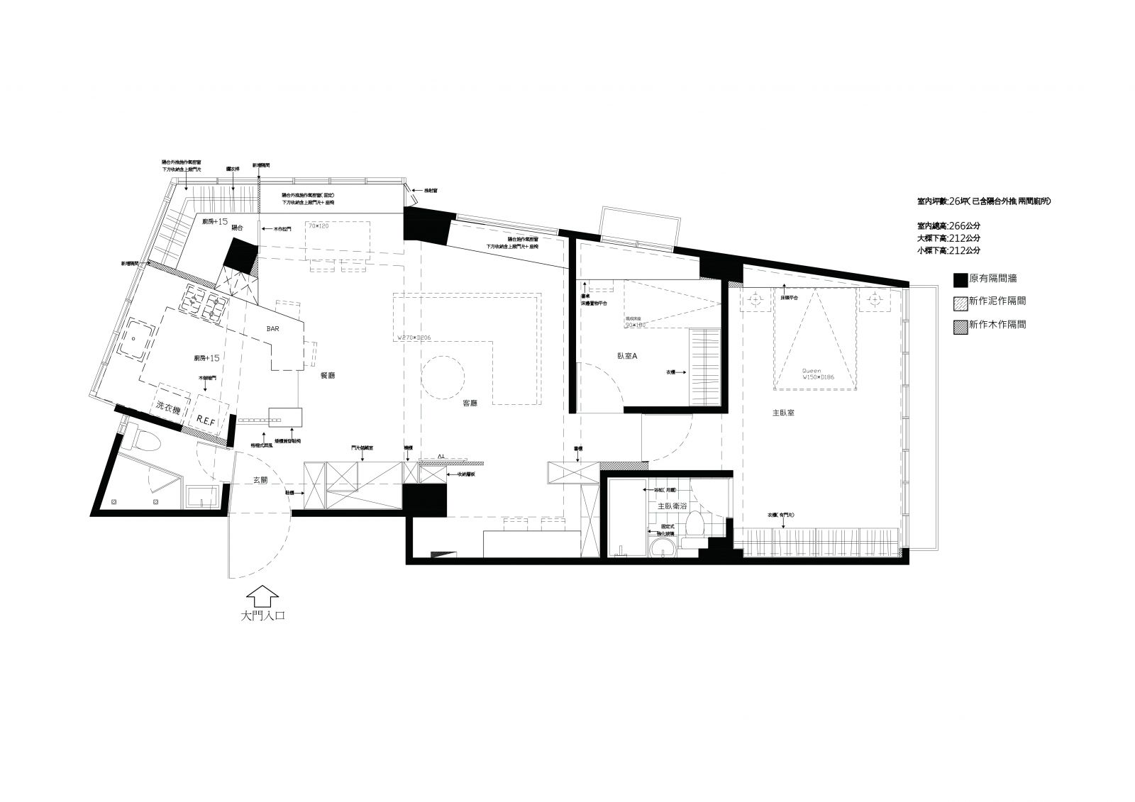
設計平面圖:

 

 

現況照片:

 

 

 

 

 

~~期待完工後的新房子吧~~