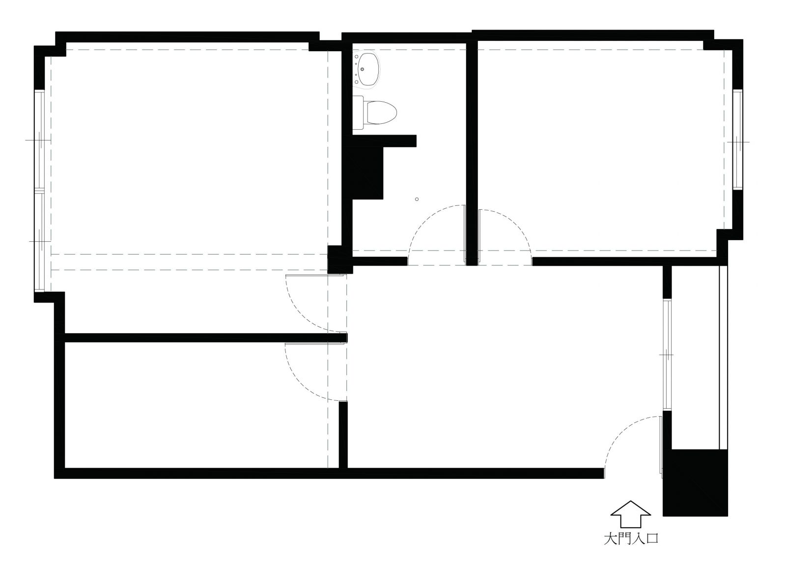
板橋江公館-現況圖平面圖

 

現況照