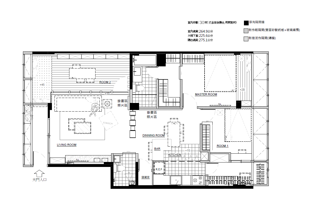
基隆朱公館設計平面圖

請期待後續的朱公館吧~~